Esmark Ferienhausvermietung
+45 69 15 96 11
[email protected]
esmark.dk
esmark.de

Wechseltag: SonntagHaus 30073, Skovvang 84, Houstrup

Willkommen in diesem Ferienhaus in Houstrup, gelegen im Skovvang 84. Auf 64 qm Wohnfläche erwartet euch ein gemütliches Zuhause für 5 Personen + 1 Hund, das perfekt in die malerische dänische Natur eingebettet ist.

Lasst den Alltag hinter euch, schaltet ab und genießt unbeschwerte Tage.

Dein Rückzugsort im Skovvang 84 

Im Inneren des Ferienhauses, welches im Jahre 2021 renoviert wurde, erwartet euch eine gemütliche und moderne Atmosphäre.

Der zentrale Wohnbereich ist der perfekte Treffpunkt für alle Gäste. Hier könnt ihr euch vor dem Kaminofen entspannen und an kühleren Tagen das knisternde Feuer genießen. Die offene Gestaltung macht es einfach, gemeinsam Zeit zu verbringen, sei es beim Spielen, Lesen oder einfach beim Faulenzen auf der Couch. Und keine Sorge, die moderne Wärmepumpe hält das Ferienhaus immer angenehm temperiert, egal wie das Wetter draußen ist.

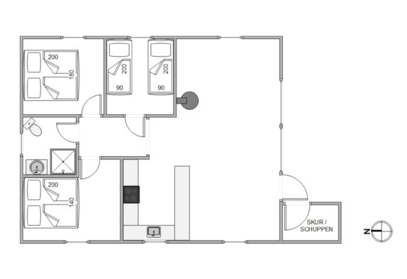
Die Küche ist modern ausgestattet und lädt dazu ein, die leckersten Mahlzeiten zu zaubern. Auf 64 qm verteilen sich 3 Schlafzimmer. 2 der Schlafzimmer haben Doppelbetten, perfekt für erholsame Nächte, während das 3. Zimmer mit 2 Einzelbetten ideal für Freunde oder Kinder ist. Und das Badezimmer hat eine Fußbodenheizung, perfekt, um an frischeren Morgen wohlig warme Füße zu haben.

Draußen zu Hause: Der perfekte Ort für sonnige Stunden und Abenteuer

Auf dem großzügigen Naturgrundstück im Skovvang 84 könnt ihr die frische Luft genießen und euch von der Sonne verwöhnen lassen. Die offene Terrasse ist der perfekte Ort für gemütliche Stunden im Freien. Ob bei einem entspannten Frühstück, einer Tasse Kaffee oder einem leckeren Abendessen unter freiem Himmel. Der Grill sorgt dafür, dass ihr ein echtes kulinarisches Highlight zaubern könnt, während ihr mit Familie oder Freunden den Tag gebührend ausklingen lasst.

Für die kleinen Entdecker gibt es auf dem Grundstück eine Schaukel, die für ordentlich Spaß und Abenteuer sorgt. Und wenn euch nach etwas Bewegung ist, führt ein Spaziergang direkt zu den Wäldern und der schönen Küstenlinie, perfekt für Entdeckungsreisen.

Falls ihr euren Hund dabei habt, keine Sorge, euer vierbeiniger Freund ist auch herzlich willkommen. So kann die ganze Familie, ob mit oder ohne Pfoten, entspannte Tage in Dänemark genießen.

Spaziergänge, Strände und Natur: Die Umgebung des Ferienhauses

Das Ferienhaus in Houstrup könnte nicht besser gelegen sein, hier warten Natur und Abenteuer direkt vor der Tür.

Nur 5 km entfernt ist der nächste Strand, wo ihr die dänische Nordseeküste in vollen Zügen genießen könnt. Macht lange Spaziergänge im Sand, lauscht dem beruhigenden Rauschen der Wellen oder legt euch einfach in die Sonne. Der Strand bietet für alle etwas.

Und wenn euch plötzlich die Lust auf ein ausgiebiges Frühstück auf der Terrasse oder ein tolles Grillfest mit der Familie kommt, ist der nächste Supermarkt nur 2,5 km entfernt. Holt euch frische Lebensmittel und alles was ihr für den täglichen Bedarf braucht.

Wenn ihr dann doch mal das Strandleben hinter euch lassen wollt, hat die Umgebung mit einer Menge zu bieten. Wander und Radwege führen euch durch dichte Wälder, über malerische Dünen und an ruhige Seen vorbei. In Houstrup könnt ihr einfach die Seele baumeln lassen oder euch ins nächste Abenteuer stürzen, ihr habt die Wahl.

Beschreibung 2026

Schlafzimmer: 3  
Grundfläche: 600 m²  
Schlafplätze: 6  
Einkauf: 2500 m  
Wohnfläche: 64 m²
Baujahr: 1979
Abstand zum Strand: 5000 m
Haustiere zugelassen: Ja, max 1



Buche das Haus jetzt unter www.esmark.de. Gib Katalognummer ein im Suchfeld auf der Startseite der Homepage.
 

Buche das Haus jetzt unter www.esmark.de. Gib Katalognummer ein 30073 im Suchfeld auf der Startseite der Homepage.

18. 04. 2026