Esmark Ferienhausvermietung
+45 69 15 96 11
[email protected]
esmark.dk
esmark.de

Wechseltag: SonntagHaus ii1036, Nordsøvej 45, Søndervig

Dieses gemütliche mit Geschirrspüler und einer Fußbodenheizung im Badezimmer ausgestattete Ferienhaus wurde 2023 renoviert und bietet euch als Familie mit bis zu 5 Personen ausreichend Platz für einen Urlaub am Meer. In wenigen Minuten seid ihr sowohl am Strand als auch im Zentrum Søndervigs und euer Hund darf natürlich mit auf Reisen. Das Badeland Lalandia liegt ganz in der Nähe dieses Ferienhauses in Søndervig.

Schöne Tage im Nordsøvej 45 in Søndervig Kamin und Wärmepumpe 

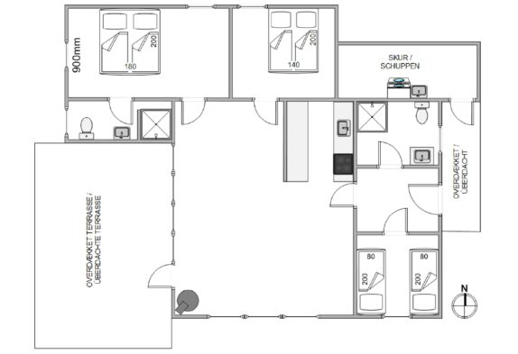
Das gemütliche Ferienhaus ist mit 3 Schlafzimmern, einem Wohnbereich mit integrierter, offener Küche sowie Essbereich und Kamin versehen. Hier könnt ihr gemeinsam kochen oder die nächsten Aktivitäten für euren Urlaub planen. Wenn ihr mit Freunden verreist, dann sind die beiden Badezimmer im Ferienhaus optimal für euch. Eines der Badezimmer könnt ihr direkt von einem der Schlafzimmer erreichen. Beide Badezimmer sowie der Flur und die Küche verfügen und eine Fußbodenheizung, sodass ihr an kalten Tagen keine kalten Füße bekommt.

Damit eignet sich dieses Ferienhaus gut für einen entspannten Paarurlaub mit Hund, aber auch für eine kleine Familie. Für die typische Ferienhausatmosphäre sorgt der Holzofen im Wohnzimmer, während zusätzlich eine energiesparende Luft-zu-Luft Wärmepumpe für eine konstante und angenehme Temperatur sorgt. Damit ihr nur eure Lieblingskleidung einpacken müsst, wurden im Schuppen noch eine Waschmaschine und ein Trockner installiert.

Es gibt einen Anbau mit einem extra Schlafplatz, also wenn die Langschläfer unter euch einmal richtig Ruhe haben möchten, hier ist es möglich.

Abgeschirmte Terrasse mit Grill und Sonnenliegen – nur 550 m zum Strand

Die große abgeschirmte und überdachte Terrasse, auf welcher ihr sicherlich immer ein windgeschütztes und sonniges Plätzchen findet, ist sowohl mit Gartenmöbeln, Sonnenliegen und einem Grill ausgestattet. Das Grundstück ist komplett eingezäunt, sodass hier keine alleine auf Entdeckungstour gehen kann. An warmen Sommertagen könnt ihr es euch hier so richtig gemütlich machen und euer Hund kann sich entspannt zu euren Füßen betten.

Es gibt einen Unterstand in dem ihr eine unvergesslichte Nacht im Freien verbringen könnt und damit es gemütlich wird, bringt euch eine Isomatte und einen Schlafsack mit. Lasst euch am Morgen dann von der Sonne und dem fröhlichen Vogelgezwischter wecken.

Die zentrale Lage dieses Ferienhauses im Nordsøvej 45 in Søndervig ist sehr praktisch, da ihr schnell im Ortskern seid und dennoch die Ruhe genießen könnt, sowie dem herrlichen Sandstrand und dem Meer seid. Euer Auto könnt ihr direkt am Haus parken und von nun an alles ganz einfach und schnell zu Fuß erreichen.

Packt die Fahrräder ein oder leiht euch welche vor Ort und erkundet so die Umgebung. Tolle Rad- und Wanderwege führen durch die Region, sodass ihr euch jeden Tag ein neues und spannendes Ziel suchen und ansteuern könnt. Einkaufsmöglichkeiten, der Bäcker aber auch Cafés und Restaurants sind schnell erreicht. Plant ihr doch einmal einen Ausflug nach Ringkøbing oder auch nach Hvide Sande, könnt ihr mit dem Fahrrad, aber auch mit dem Auto fahren.

Beschreibung 2026

Schlafzimmer: 3  
Grundfläche: 1,237 m²  
Schlafplätze: 5  
Einkauf: 250 m  
Wohnfläche: 89 m²
Baujahr: 1985
Abstand zum Strand: 550 m
Haustiere zugelassen: Ja, max 1



Buche das Haus jetzt unter www.esmark.de. Gib Katalognummer ein im Suchfeld auf der Startseite der Homepage.
 

Buche das Haus jetzt unter www.esmark.de. Gib Katalognummer ein ii1036 im Suchfeld auf der Startseite der Homepage.

24. 03. 2026