Esmark Ferienhausvermietung
+45 69 15 96 11
[email protected]
esmark.dk
esmark.de

Wechseltag: SamstagHaus L6815, Gaffelbjergvej 20, Husby

Im idyllischen Vester Husby, zwischen dem Ringkøbing Fjord und dem Nissum Fjord gelegen, erwartet euch dieses schöne Reetdachhaus auf einem 5000 m2 großen, von Bäumen umgebenen, Grundstück. Auf 96 m2 gibt es hier Platz für bis zu 5 Personen und 2 Haustiere. Euch erwarten erholsame Tage in einer naturreichen Umgebung und vor dem Kamin lassen sich gemütliche Abende verbringen.

Gemütlichkeit und Ruhe im Fokus

Dieses perfekt in die Natur intergrierte Ferienhaus im Gaffelbjergvej 20 ist gemütlich und zugleich praktisch eingerichtet. Im grossen Wohn- und Essbereich gibt es ausreichend Sitzmöglichkeiten, einen Flachbildfernseher sowie einen Kamin, welcher für eine angenehme Raumtemperatur und urgemütliche Urlaubsatmosphäre sorgen wird. Die Küche ist zwar klein, aber dennoch mit den wichtigsten Untensilien ausgestattet. 

Während das Holz knistert und knackt, könnt ihr endlich wieder mal einen Spieleabend veranstalten, einfach nur eure Beine hochlegen oder einen Film schauen. Es gibt sogar einen Chromecast über den ihr eure Lieblingsserien streamen könnt.

Desweiteren gibt es eine energiesparende Wärmepumpe und eine Waschmaschine im Ferienhaus. 

Schlafzimmer mit Balkon im Obergeschoss

Von einem der Schlafzimmer, welches ihr über eine offene Treppe aus dem Untergeschoss erreicht, habt ihr Zugang zu einem kleinen Balkon. Ideal, um die erste Tasse Kaffee des Tages in aller Ruhe bei Vogelgezwitscher zu trinken und den Tag ganz gemütlich zu starten.

Genießt den Blick ins Grüne und schmiedet Pläne für die kommenden Urlaubstage und Unternehmungen. Zahlreiche Wege führen euch zum Strand und durch das schöne umliegende Gebiet.

Teilweise überdachte Terrasse im Gaffelbjergvej 20

Auf der teilweise überdachten Terrasse könntet ihr leckere Mahlzeiten auf dem Grill zubereiten und ausgiebige Sonnenbäder auf den Sonnenliegen nehmen. Hier seid ihr ganz ungestört und während die Kinder noch mit dem Hund durch den Garten tollen geniesst ihr einfach das Leben unter freiem Himmel und lasst den Alltag ganz weit hinter euch.

Naturliebhaber kommen hier voll auf ihre Kosten. Nicht nur eine bunt gemischte Vogelwelt sondern auch Fuchs, Hase und Co. werden euch vielleicht das ein oder andere Mal im Garten besuchen. Denkt daran, eure Kamera bereitzuhalten.

Die gute Lage in Vester Husby lässt es zu, sowohl erholsame Tage in aller Abgeschiedenheit zu verbringen als auch Ausflüge zu verschiedensten Attraktionen, dem Strand und spannenden Orten wie Thorsminde, Ulfborg, Holstebro oder auch Ringkøbung zu unternehmen.

 

Beschreibung 2026

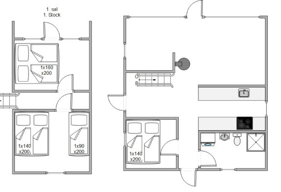
Schlafzimmer: 3  
Grundfläche: 5,000 m²  
Schlafplätze: 5  
Einkauf: 1000 m  
Wohnfläche: 96 m²
Baujahr: 1974
Abstand zum Strand: 1200 m
Haustiere zugelassen: Ja, max 2



Buche das Haus jetzt unter www.esmark.de. Gib Katalognummer ein im Suchfeld auf der Startseite der Homepage.
 

Buche das Haus jetzt unter www.esmark.de. Gib Katalognummer ein L6815 im Suchfeld auf der Startseite der Homepage.

21. 04. 2026