Esmark Ferienhausvermietung
+45 69 15 96 11
[email protected]
esmark.dk
esmark.de

Wechseltag: SonntagHaus J6412, Mågedalen 66, Houvig

In Houvigs friedlicher und dünenreichen Umgebung, liegt dieses charmante Holzhaus auf Mågedalen 66. Die rot gestrichenen Bretter strahlen wahres Sommerurlaubsfeeling aus, und  auch im Inneren des Hauses, herrscht Gemütlichkeit und Persönlichkeit durch die vielen kleinen Details. Hier findet ihr alles, was euer Urlauberherz begehrt: entspannende und freundliche Umgebung, viel Privatsphäre, eine stabile Internetverbindung und nur 350 Meter zum Meer! Wenn ihr mit einem E-Auto anreist, dann habt ihr am Ferienhaus die Möglichkeit euer E-Auto wiederaufzuladen. Mit dem eigenen Ladekabel/Adapter wird dies kein Problem sein.

Liebevolle und persönliche Einrichtung sowie blitzschnelle Internetverbindung

Mit Mågedalen 66 als Urlaubsziel ist euch ein erholsamer Urlaub, weit weg vom Alltag, garantiert. Hier ist Platz für bis zu 6 Personen und euer Hund ist auch mehr als willkommen.

Das Haus wurde liebevoll dekoriert und dies werdet ihr vom ersten Moment an spüren. Die vielen kleinen Details machen die Umgebung persönlich und besonders gemütlich. Helle Holzwände und Decken sorgen für eine entspannte und freundliche Atmosphäre – sowohl im Wohnzimmer als auch in den gemütlichen Schlafzimmern.

In der Sofaecke könnt ihr ein gutes Buch lesen oder bei einem Glas Rotwein auf der Couch entspannen, während der Holzofen für knisternde Wärme und Urlaubsfeeling sorgt. Die stabile und schnelle Internetverbindung ermöglicht zum Beispiel auch das Streamen von Filmen auf euren Computern und iPads.

Herrliche Terrassen mit viel Privatsphäre im Mågedalen 66

Sowohl von den Schlafzimmern als auch vom Wohnzimmer habt ihr Zugang zu den herrlich gemütlichen Terrassen, die sich auf mehrere kleine Ebenen verteilen. Durch die Terrassen auf beiden Seiten des Hauses, könnt ihr einfach immer der Sonne folgen und die äußerst geschützte Lage bietet viel Privatsphäre, um das schöne Wetter in Ruhe zu genießen.

Hier, mitten in der Natur, erreicht ihr auf kleinen Pfaden durch die Weite der Dünenlandschaft, schnell den nächsten Strand, der nur 350 Meter entfernt liegt. Der kilometerlange Sandstrand wird sicherlich bei euch allen, egal ob groß oder klein und natürlich auch bei den Hunden zum sicheren Hit.

Wenn ihr etwas flanieren und shoppen wollt, könnt ihr den gemütlichen Ferienort Søndervig mit seinen vielen gemütlichen Cafés, Geschäften und Restaurants besuchen.

 

Beschreibung 2025

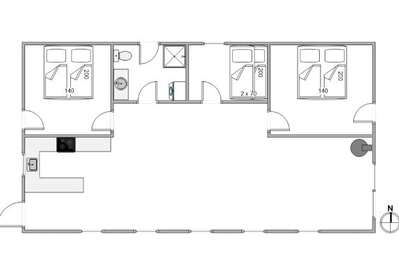
Schlafzimmer: 3  
Grundfläche: 1,350 m²  
Schlafplätze: 6  
Einkauf: 500 m  
Wohnfläche: 78 m²
Baujahr: 1986
Abstand zum Strand: 350 m
Haustiere zugelassen: Ja, max 1



Buche das Haus jetzt unter www.esmark.de. Gib Katalognummer ein im Suchfeld auf der Startseite der Homepage.
 

Buche das Haus jetzt unter www.esmark.de. Gib Katalognummer ein J6412 im Suchfeld auf der Startseite der Homepage.

18. 10. 2025